3D Rendering
The Concept
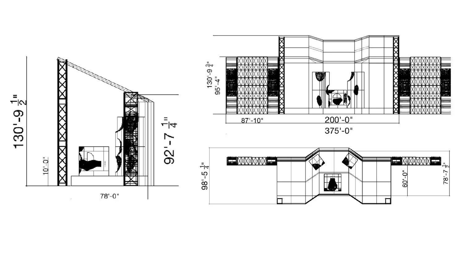
Created animated visuals and a stage design for a concert experience. The story has 3 scenes that represent environmental degradation from 1st POV to create an immersive introspective for viewers to be conscious of how our actions impact earth.
Project
Studio design thesis
Industry
Live Entertainment
Role
3D Designer
Programs Used
Blender, Adobe Premiere
Stage design specs

